Wielandstraße 28, 39108 Magdeburg
Kosten
Kaltmiete:
369.32 €
Betriebskosten:
65.68 €
Heizkosten:
80.00 €
Gesamtmiete:
515.00 €
Genossenschaftsanteile:
780.00 €
Allgemeine Infos
Wohnungs-Nr.:
173/1/7
Etage:
3. Etage
Anzahl der Zimmer:
2
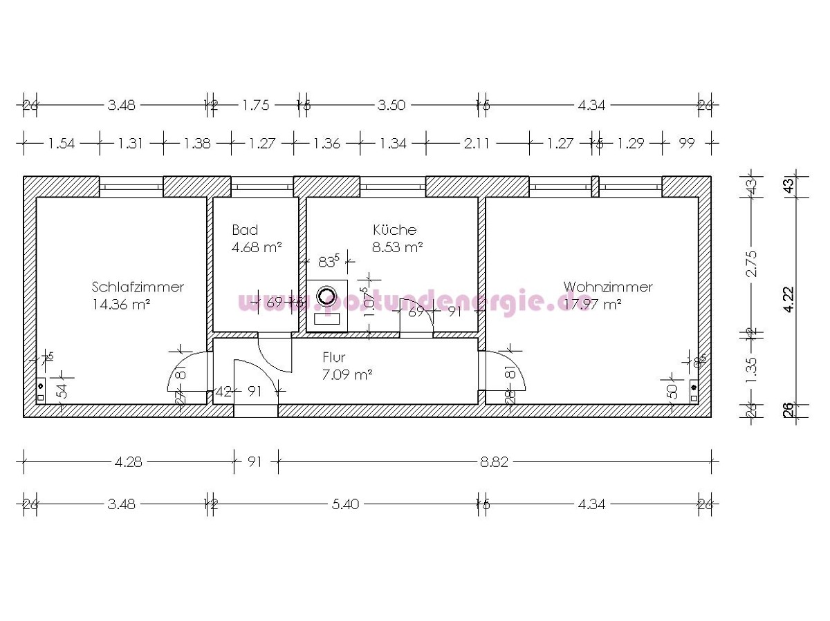
Wohnfläche:
52.76 m²
Frei ab:
01.05.2026
Objektinformationen
Balkon:
Aufzug:
Küche mit Fenster:
Bad mit Fenster:
2 Balkone:
Wohnküche mit Fenster:
HWR:
Dusche:
Wanne:
Stellplatz möglich:
Rollstuhl geeignet:
Vollsaniert:
Dachterrasse:
Terrasse:
Gäste-WC:
Garage:
Ankleide:
Garten:
Energieausweisdaten
Gebäudebaujahr:
1958
Objektbeschreibung
Die Wohnung wurde 2014 hochwertig saniert. Das Tageslichtbad wurde mit einer Dusche, einem Wand-WC, einem Handtuchradiator und hochwertigen Fliesen ausgestattet. Neben weißen Zimmertüren erhielten die Wohnräume einen hochmodernen Fußbodenbelag. Die Decken und Wände sind Raufaser weiß tapeziert. Öffentliche Stellplätze befinden sich vor dem Wohngebäude.
Das Küchenmobiliar kann vom jetzigen Mieter übernommen werden.
Das Küchenmobiliar kann vom jetzigen Mieter übernommen werden.
Sonstiges
- ruhige Wohnanlage / grüner Innenhof
- günstige Verkehrsanbindung / gute Einkaufsmöglichkeiten
- günstige Verkehrsanbindung / gute Einkaufsmöglichkeiten
